Shelter::Micro Cabin

Micro Cabin 3D Rendering. The micro cabin is a small structure that is designed to "help one get by" while a more permanent structure is being built. It provides a solid place to sleep or keep an office that is raised off the ground to protect it from critters that may wander by as well as ground dew. It can also be built with a patio and detached roof. More than one can be built for different purposes or additional people.

Discussion

Tallks through the rationale and construction of the hut. Including the method, windows and doors, construction, cladding and insulation, power, water and waste, heating, cooling and storage, knowledge, arts and entertainment. More...

Schematics - Inside Views

Line drawings of the four walls, the floor and upper section, with measurements. This includes cabinets, can include a sink. Dimensions and sizes of windows. Location of optional fridge. Location of optional monitor set and computer chair. More...

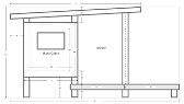
Schematic - Outside View

Micro Cabin Schematic South.View of the outside of the structure, including the secondary roof and patio. The small cabin is raised up off the ground for distance from racoons and their ilk and for an improved perception of safety. More...

3D Renderings

Micro Cabin With Patio and Secondary Roof3D renderings of the micro cabin, showing use as an office, and with patio and secondary roof. More...