Micro Cabin - Schematics - Inside Views

Inside Detail View West

Inside Detail View West - V2

Inside Detail View West Desk - V2

Inside Detail View East

Inside Detail View South

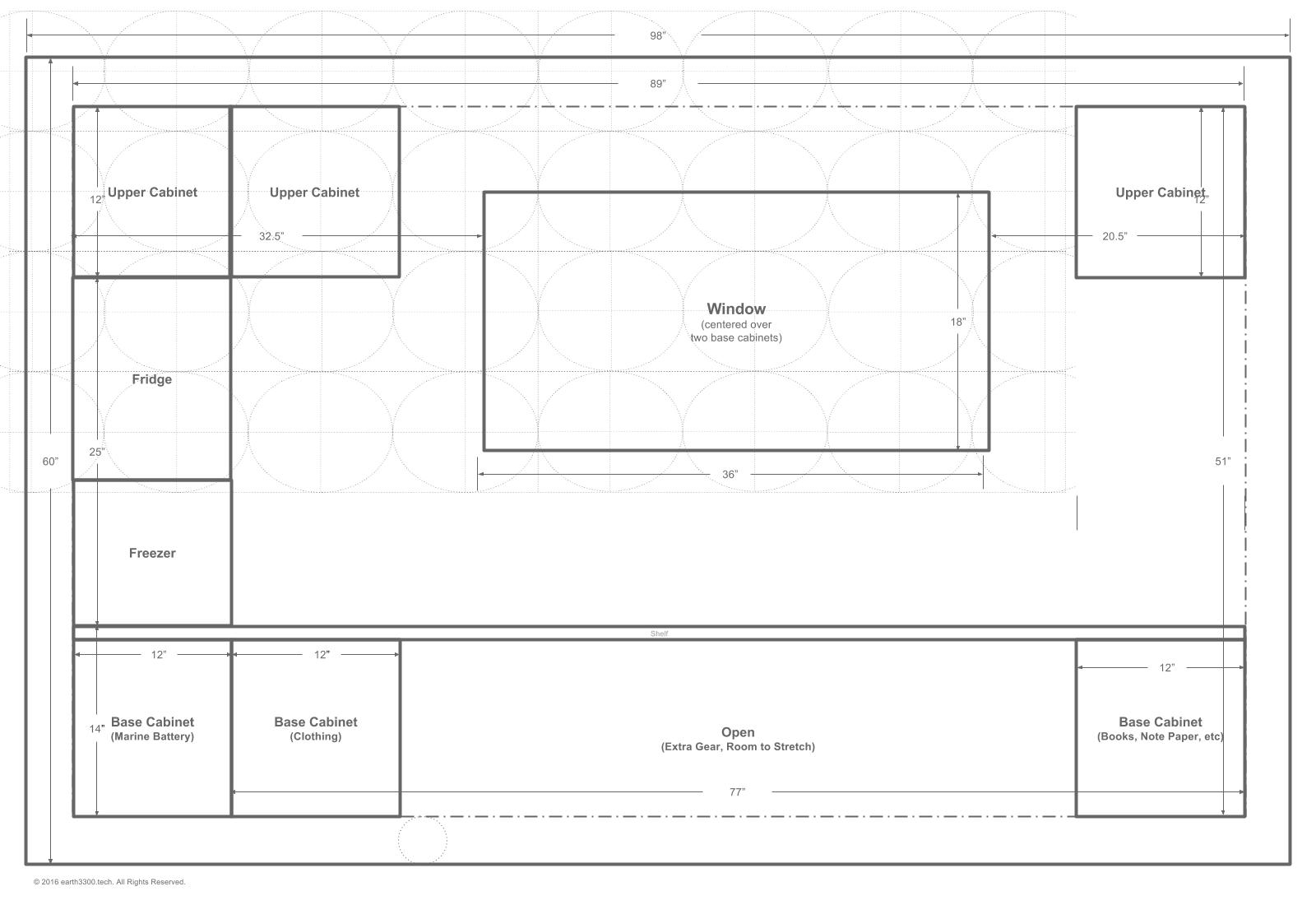
Inside Detail View South - V2

Inside Detail View North

Inside Detail View Bottom

Inside Detail View Bottom - V2

Here is a schematic of the floor plan after the initial one was designed. When talking through the initial plan it was realized that one would swing into the cabin and then want to remove boots or shoes when inside. These need to be stored somewhere. Also, to provide a degree of separation between the mattress area and the outside (to remove the mattress and sleeping bag or comforter from the outside elements), a "sitting ledge" would provide a nice transition point and allow the occupant to sit for a while on that ledge before getting up in the morning, or before settling down for the night.

Inside Detail View Top